

自然素材に包まれ、光とともに暮らす家
大阪府岸和田市にて公開していた
haconiwa-house岸和田モデルハウス
事務所移転のため、特別価格にてお譲りします。
吹き抜けと土間が生み出す開放感と、無垢材のぬくもりに包まれた住まい。
家族の新たな暮らしを、この場所からはじめませんか。

| 所在地 |
〒596-0807 大阪府岸和田市東ヶ丘町808-324 |
|---|---|
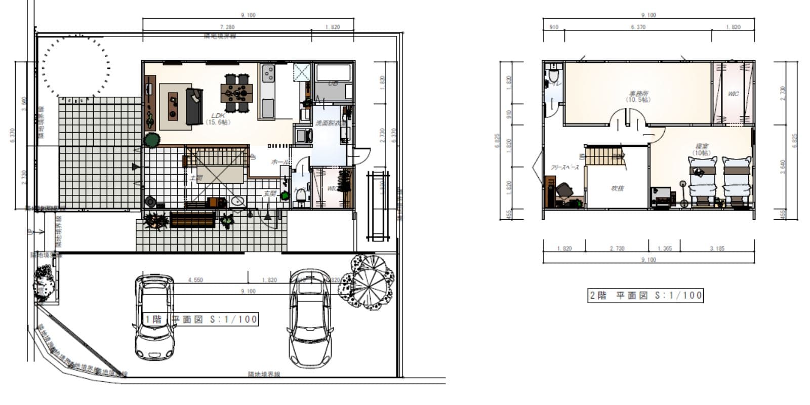
| 販売価格 | 3,530万円(土地+建物) |
| 土地面積 | 233.11㎡(約70.51坪) |
| 延床面積 |
1階:57.97㎡(約17.53坪) 2階:54.24㎡(約16.40坪) 計:122.21㎡(約36.97坪) |
| 構造 | 木造2階建て |
| 建築完成時期 | 2022年3月 |
| 入居可能時期 | 相談 |


「光」「風」「素材」と暮らす
やさしい住まい

家づくりにおいて、私たちが大切にしていること
それは、自然と繋がる心地よさと家族がのびのび過ごせる空間づくり。
このモデルハウスは、その思いをカタチにした建物。
無垢材の床と大きな吹き抜けがつくる開放感。
土間と庭がつながる暮らしは、日々の生活にやすらぎと豊かさを与えてくれます。
家族の絆を紡ぐシェア空間
LDKと土間を結びつけることで家族がともに過ごす時間をより特別なものになります。
家族が集まり、日常の出来事や喜びを共有する時間が増え家族の絆を深める土壌となります。
我が家だけにある特別なスローライフ空間
各々の趣味を楽しむ。余白の時間を過ごす。
日常の騒音から解放された自分らしい時間を過ごすための空間をカスタマイズできる空間です。
身近に自然を感じられる清涼な空間
パッシブデザインにより自然の恵みを活用し天然素材を使った空間により自然と調和した森林で深呼吸をしするような清涼で心地よい空間を創り出します。

・床材や梁などに無垢材を使用
・時を重ねるほどに味わいが増す素材選び
・化学物質を抑えた、家族にもやさしい住まい
・南側に配置した大きな窓から家中に自然光が広がる
・季節ごとに心地よい風が通り抜ける設計
・視線が抜けることで、実際の広さ以上の開放感を演出
・玄関土間を広く確保し、外と内をつなぐセカンドリビングに
・自転車やベビーカーも収納しやすい動線
・趣味空間としても使える多用途な土間空間




交通アクセス
南海鉄道泉北線「和泉中央」駅よりバスで16分
阪和自動車道「岸和田和泉」より11分
周辺生活利便施設
●近隣スーパー徒歩10分以内
●東ケ丘第3公園 約25m
●和泉中央病院 約730m
●城東小学校 約700m
●山直中学校 約850m
周辺環境・ロケーション





| 会社名 | 有限会社瀬尾工務店 |
|---|---|
| 所在地 |
本社 大阪府堺市北区長曽根町1512-24 |
| 建築許可番号 |
建築業大阪府知事許可(特-4) 第120852号 |
| 電話番号 | 072-259-6094 |

AJAX通信に失敗したか、nonceの検証に失敗しました。 このエラーが繰り返し発生する場合は、セキュリティ関連のプラグインによってアクセスがブロックされている可能性があります。 「公開ページでのAJAX通信のURLを選択」と「公開ページでのAJAX通信でNonceの値の検証で使う関数を選択」の値の変更をBooking Package > 一般設定で行ってください。
| ID | 予約日時 | カレンダー | 状態 |
|---|